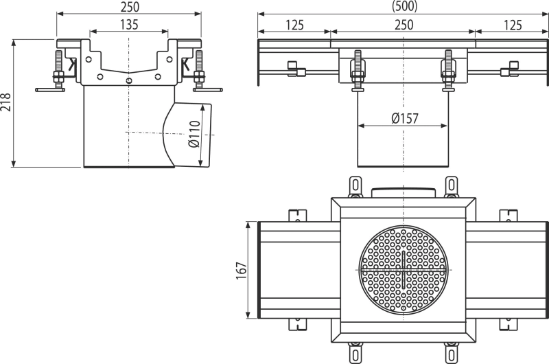
Industrijski točkasti slivnik sa ulazima 250×250-135, inox AISI 316L

APR6-1221-135

Zapor za mirise vode50 mm
  • Za odvod iz velikih industrijskih područja i drugih komercijalnih pogona unutar zgrada, npr. u kemijskoj i prehrambenoj industriji
  • Za odvod većih količina vode, pogodno i za veće udaljenosti
  • Slivnik od nehrđajućeg čelika (oplemenjivanje materijala dekapiranjem i pasivacijom), ovaj postupak jamči da nehrđajući čelik zadržava svoja svojstva i pouzdanu funkciju čak i nakon nekoliko godina
  • Cijeli sustav je čvrsto usidren u beton pomoću lako podesivih nogu i bočnih sidara
  • Visok protok
  • Podesiva visina između 85–125 mm
  • Korištena brtva osigurava potpuno vodonepropusnu vezu
  • Materijal slivnika: nehrđajući čelik 1,5 mm, DIN 1.4301
  • EN 1253-1
Količina (paket) 1 kom
Količina (paleta) - kom
Dimenzije (komad) 218×500×250 mm
Težina (komad) 5,5735 kg
Težina (paket) 5,5735 kg
Težina (paleta) - kg
  • Slivnik
  • Brtva 1 kom
  • Podesive noge 4 kom
  • Sito za prljavštinu
  • zapor za mirise
  • Set za fiksiranje
Product codeEANTechnical sheet
APR6-1221-1358595580573485Technický list